2017 aho
collaboration with dina watten
A new town hall for Larvik
perspective from the town square
perspective from the town square
main entrance courtyard
main entrance courtyard
situation plan
situation plan
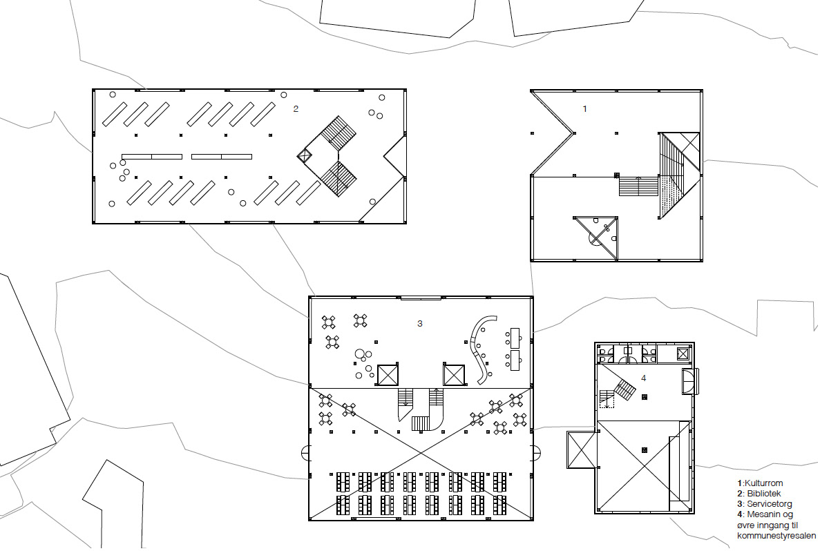
First floor plan
First floor plan
Exhibition room
Exhibition room
Library
Library
section
section
elevation
elevation
structural model
structural model
Back to Top