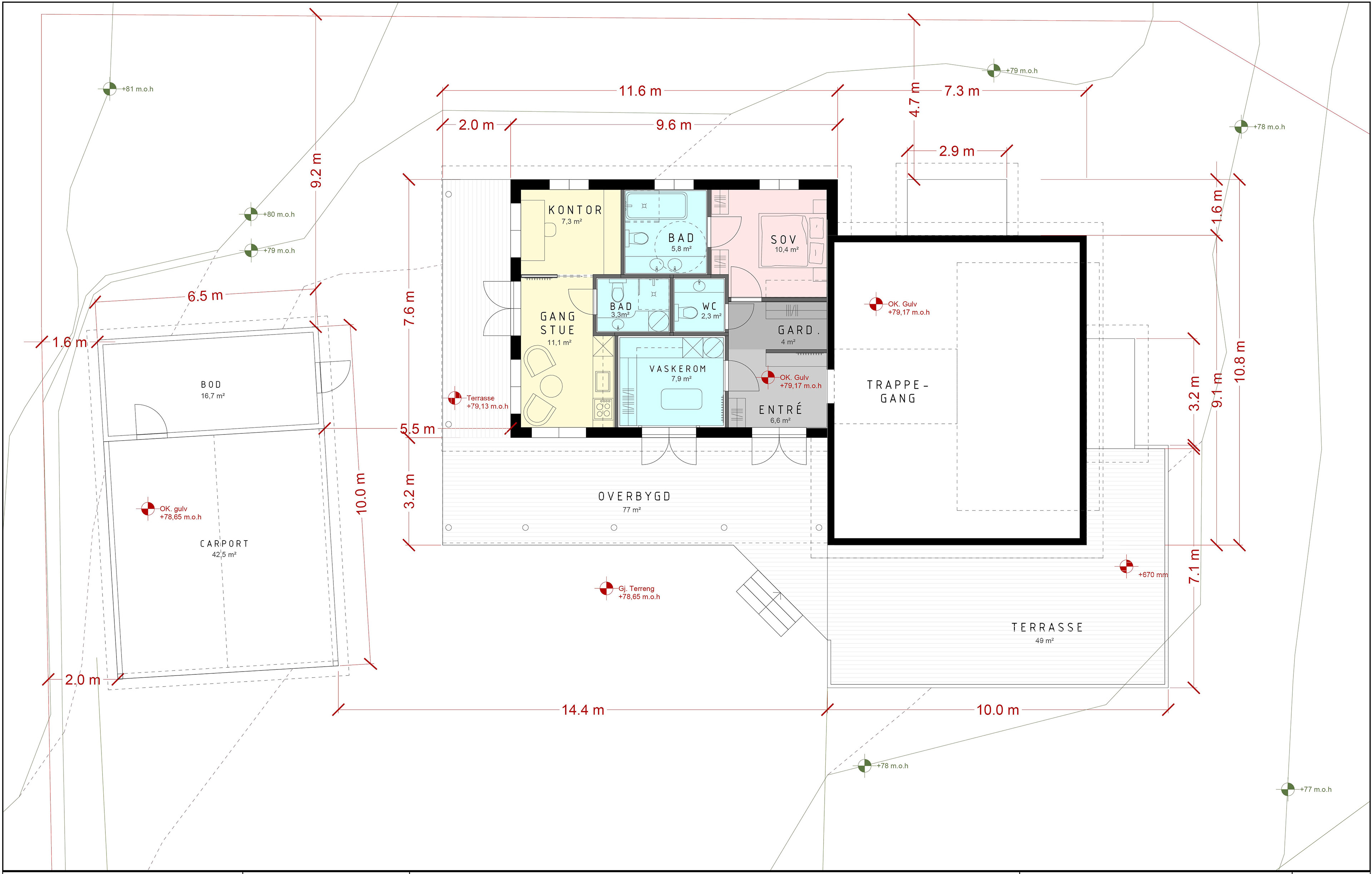
Tilbygg og garasje på tomt med eldre hus. Tilbygget skulle dekke behovet for et master soverom med eget bad, et ekstra toalett i tilknytning til inngangsparti, god plass til garderobe, og et romslig vaskerom med mulighet for utgang til overbygd terrasse. I tillegg er det en egen del som kan brukes som kontor og omgjøres til leilighet ved et senere tidspunkt. 
Planløsningen har livsløpsstandard og det kan lett bygges rampe i stedet for trapp fra gårdsplass til terrasse.
Huset har saltak og "tradisjonell" karakter, og tilbygget har en estetisk tilpasning til dette.
Illustrasjon
Illustrasjon
Planløsning tilbygg og garasje.
Planløsning tilbygg og garasje.
Eksisterende fasader
Eksisterende fasader
Nye fasader - sør og nord
Nye fasader - sør og nord
Nye fasader - øst og vest
Nye fasader - øst og vest
Back to Top